Посмотреть на карте

Офис Whitewill:

Пресненская набережная, 6с2, Башня «Империя», 3-й подъезд, офис 4315
River House
Жилой комплекс премиум-класса на набережной Москвы-реки
от 195 м²
площадь квартиры
от 260 000 000 ₽
цена квартиры
Презентация комплекса
Внутри — расположение комплекса, архитектура и инфраструктура
PDF 13.71 MB.
Время скачивания файла - 6 секунд
Презентация комплекса
Внутри — расположение комплекса, архитектура и инфраструктура
← Можно пролистнуть →

О комплексе «Ривер Хаус»

Рассказывают брокеры
Жилой комплекс премиум-класса
River House — 15-этажный дом премиум-класса на 48 квартир площадью от 86 до 550 м². Из окон квартир открываются панорамные виды на реку, площадь Европы и мост Богдана Хмельницкого. В приватном дворе высажены газоны и цветники, обустроена детская площадка.
Expert 1
Наталья
Партнёр компании
Удобное расположение
Жилой комплекс River House расположен на набережной Москвы-реки в Хамовниках. В 5-10 минутах удобные выезды на Кутузовский проспект, Садовое кольцо и ТТК. Ближайшая станция метро «Киевская» в 12 минутах прогулочным шагом.
Expert 2
Степан
Партёр компании
Безопасность и оснащение
В комплексе установлены системы приточно-вытяжной вентиляции и центрального кондиционирования. Подключена пожарная сигнализация. Безопасность обеспечивается круглосуточной охраной. По периметру установлены видеокамеры, въезд осуществляется исключительно через КПП.
Expert 3
Инна
Партнёр компании

Планировки и цены квартир

Вы можете выбрать, забронировать и купить квартиру в жилом комплексе River House в нашем разделе с планировками и ценами.
от 260 000 000 ₽
от 1 330 000 ₽ за м2
от 195 м2
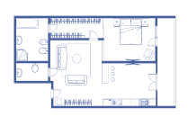
Это типовая планировка, а не квартира. Альбом со всеми планировками можно скачать на сайте. Посмотреть все лоты можно переключив фильтр справа.
С Студия
1 спальня
2 спальни
3 спальни
4+ спальни
Другие варианты планировок:
plan-lot-171819
Квартира с 3 спальнями
260 000 000 ₽ 0 ₽ в месяц
3 спальни
Без отделки
195 м²
Лот #324731
interior-lot-171817
interior-lot-171817
interior-lot-171817
interior-lot-171817
interior-lot-171817
interior-lot-171817
interior-lot-171817
interior-lot-171817
interior-lot-171817
interior-lot-171817
interior-lot-171817
interior-lot-171817
interior-lot-171817
interior-lot-171817
interior-lot-171817
interior-lot-171817
interior-lot-171817
interior-lot-171817
interior-lot-171817
interior-lot-171817
Квартира с 3 спальнями
270 000 000 ₽ 0 ₽ в месяц
3 спальни
Без отделки
215 м²
Видовая квартира с тремя спальнями в клубном доме River House на Саввинской набережной. Квартира без отделки общей площадью 215 м² расположена на пятнадцатом этаже. Возможная планировка: просторная кухня-гостиная с выходом на лоджию, две спальни с собственными гардеробными и санузлами, кабинет или спальня, гостевой санузел, гардеробная и холл. Окна ориентированы на две стороны, открываются панорамные виды на Москву-реку, башни «Москва-Сити» и на гостиницу «Украина». Дополнительно можно приобрести два машино-места в подземном паркинге.
Лот #285475
Продайте свою квартиру в ЖК River House
Оставьте заявку, и эксперт проекта свяжется с вами для добавления вашей квартиры на сайт
Продать квартиру
Инна
plan
plan2
Инна, Партнёр компании
light
light
light
light
lamp

Презентация комплекса

Расположение, архитектура и инфраструктура жилого комплекса «Ривер Хаус» в нашей pdf-презентации.
Каталог
Хотите арендовать квартиру в доме River House?
Оставьте заявку, и эксперт проекта свяжется с вами и подберёт подходящий вариант
Оставить заявку
аренда апартаментов

Расположение комплекса

ЖК River House расположен по адресу: Москва, Саввинская набережная. 9. Запишитесь на экскурсию по телефону или на нашем сайте.
Киевская, 10 минут
Фрунзенская, 15 минут
ТТК – 10 минут
Садовое кольцо – 5 минут

Места поблизости

  Стадион «Лужники»
12 минут
Стадион «Лужники»
  Воробьевы горы
13 минут
Воробьевы горы
  Храм Христа Спасителя
11 минут
Храм Христа Спасителя
  Московский Кремль
12 минут
Московский Кремль
  Деловой центр «Москва-Сити»
12 минут
Деловой центр «Москва-Сити»
  Гостиница Украина (Radisson)
10 минут
Гостиница Украина (Radisson)
  Парк им. Горького
8 минут
Парк им. Горького

Доступная ипотека

Подайте заявку на ипотеку и получите решение сразу из нескольких банков-партнёров.
Стоимость недвижимости
Первоначальный взнос
Срок кредитования
Лучшее предложение на основе вашего запроса:
Процентная ставка
от 21,9 %
Ежемесячный платёж
от 135 845
Банки партнёры:
Газпромбанк
ВТБ
Сбербанк
Альфа-Банк
Дистанционно одобрим ипотеку
Ставка от 21,9%
Решение за 72 часа
Ответ из нескольких банков
Решение в трудных ситуациях
Одобрить ипотеку
andrew
Анастасия
Ипотечный брокер

Вопросы и ответы

Где расположен ЖК River House и какие преимущества у локации?

ЖК River House расположен по адресу: Саввинская набережная, 9, в престижном районе Хамовники, ЦАО Москвы. Комплекс находится на первой линии Москвы-реки, с панорамными видами на воду и центр столицы. Удобный выезд на Садовое кольцо, близость делового центра и развитая инфраструктура делают объект привлекательным как для проживания, так и для инвестиций в элитную недвижимость Москвы.

К какому классу относится комплекс «Ривер Хаус»?

River House — это клубный дом премиум-класса в Хамовниках. Объект относится к сегменту элитной недвижимости Москвы с ограниченным количеством квартир, высоким уровнем приватности, авторской архитектурой и современными инженерными системами.

Какие квартиры представлены в продаже?

В продаже представлены просторные квартиры свободной планировки, апартаменты с панорамными окнами, лоты с террасами и видами на Москву-реку. Возможна покупка квартиры с отделкой или под индивидуальный дизайн-проект. Доступны варианты с 2–5 спальнями, пентхаусы и видовые резиденции.

Какова стоимость квартир в ЖК River House?

Цена за м² и итоговая стоимость зависят от площади, этажности, видовых характеристик и наличия террасы. River House относится к категории «элитная недвижимость на Саввинской набережной», поэтому стоимость соответствует премиальному сегменту. Актуальные цены и наличие квартир можно уточнить у нашего эксперта.

Есть ли парковка и инфраструктура в комплексе?

В комплексе предусмотрен подземный паркинг с машиноместами и круглосуточная охрана. Для жителей доступны консьерж-сервис, закрытая охраняемая территория, видеонаблюдение, современные инженерные системы и лифты премиум-класса. В шаговой доступности — рестораны, фитнес-клубы, бутики и образовательные учреждения Хамовников.

Какая транспортная доступность у «Ривер Хаус»?

Комплекс расположен рядом с ключевыми магистралями центра Москвы. В пешей доступности станции метро «Спортивная» и «Фрунзенская». Удобный выезд на Комсомольский проспект и Садовое кольцо обеспечивает быстрый доступ к деловому центру и другим районам Москвы.

Какие виды открываются из окон квартир?

Квартиры обладают панорамными видами на Москву-реку, набережную и исторический центр столицы. Видовые характеристики являются одним из ключевых преимуществ покупки квартиры на Саввинской набережной.

Можно ли купить квартиру в ипотеку?

Возможна покупка квартиры в ипотеку через банки-партнёры. Условия ипотечного кредитования зависят от выбранной программы, первоначального взноса и статуса объекта. Также доступна покупка за наличные или через индивидуальные условия сделки.

Почему стоит купить квартиру в ЖК River House на Саввинской набережной?

Это сочетание престижной локации в Хамовниках, клубного формата, вида на реку, высокого уровня безопасности и приватности. River House — выбор для тех, кто ищет элитную квартиру в центре Москвы, недвижимость с панорамными окнами и статусный адрес на первой линии набережной.
Запишитесь на просмотр
Укажите свои контакты и менеджер свяжется с вами, чтобы уточнить удобное время просмотра
Записаться на сайте Записаться в WhatsApp Записаться в Telegram Записаться в Max